Michael Protschky

 Schloss Coswig


Eingang Schloss Coswig
Eingang Schloss Coswig


Das Schloss in Coswig (Sachsen-Anhalt) steht direkt an der Elbe gegenüber des Wörlitzer Parks. Gebaut als Witwensitz im 17. Jahrhundert, umgenutzt als Gefängnis und Archiv, steht das Gebäude heute leer. Die derzeitige Eigentümerin hat zwar mit Umbauarbeiten zu einem transnationalen Kulturzentrum begonnen, musste die Arbeiten jedoch 2012 aufgrund von Planungsfehlern des ausführenden Architekten einstellen.
Für die Masterthesis sollte ein alternatives Konzept zu den gescheiterten Planungen entwickelt werden, das die Denkmalwerte des Schlosses ebenso berücksichtigt wie die Machbarkeit in wirtschaftlicher und gesellschaftlicher Hinsicht. Kern des Konzepts ist die schrittweise Aneignung der bestehenden Räume durch einen architektonischen Eingriff, der sich dem Raum des Denkmals anpasst. Durch die Modularität des Einbaus kann das Gebäude etappenweise in Gebrauch genommen werden, die Eigenständigkeit der Konstruktion und die geringen Eingriffe in den Bestand ermöglichen einen Erhalt der Bausubstanz über die geplante Nutzung hinaus.


Masterthesis
"Schloss Coswig"

Betreuung durch
Professur Entwerfen und Raumgestaltung
Prof. Dipl.-Ing. José Mario Gutierrez Marquez
Professur Komplexe Gebäudelehre
Prof. Dipl.-Ing. Jörg Springer
Professur Bauformenlehre
Prof. Dipl.-Ing. Dipl.-Des. Bernd Rudolf


Schloss Coswig
Schloss Coswig von der Schlossstraße aus gesehen


Lageplan Schloss Coswig
Lageplan

Das Schloss in Coswig (Sachsen-Anhalt) wurde in seiner heutigen Erscheinung im 17. Jahrhundert als barocker Neubau für Sophia Augusta von Anhalt-­Zerbst, die Schwester der schwedischen Königin, errichtet. Die Konzeption der Vier­flügel­­anlage wurde den französischen Bauten wie dem Louvre nachgeahmt und den örtlichen Gegebenheiten angepasst. Direkt an der Elbe gelegen, wurde das Schloss vor allem als Witwensitz genutzt, war aber auch Aushängeschild zu den nahen Fürstentümern Kursachsen und Anhalt-Dessau.
Nach dem Tod der letzten Fürstin baute man das Gebäude zum Gefängnis um, das auch in der Zeit des Nationalsozialismus und der DDR bestehen blieb. Erst 1956 wurde es geschlossen und stattdessen ein Archiv eingerichtet. Beide ­Umnutzungen hatten einschneidende Umbaumaßnahmen zur Folge, die die Innengestaltung des Schlosses fast komplett vernichteten.
Seit der Auflösung des Archivs 1998 steht das Schloss leer, 2006 wurde es von der italienischen Investorin Magnolia Albertazzi gekauft um dort ein Kultur­zentrum mit Opern- und Musikaufführungen und Ausstellungen einzurichten.



Axonometrie
Explosionszeichnung des Schlosses und der neuen Einbauten
5 Thesen zum Umgang mit dem Bestand des Schlosses Coswig

I.
Schloss Coswig ist heute eine Ruine mit ambivalentem Charakter.

II.
Es ist einerseits ein erhaltenswürdiges Baudenkmal, auch wenn die Umbauten und der Verfall der letzten Jahre viel Substanz zerstört haben. Gerade die Atmosphäre des Vergangenen bewirkt einen zeitlichen Bruch mit dem alltäglichen Raum, der den Ort als Heterotopie (nach Michael Foucaults Vortrag "Von anderen Räumen") erfahrbar macht.

III.
Andererseits liegen viele der Qualitäten des Schlosses brach und müssen durch einen Prozess der Architektur reaktiviert werden. ­Der Raum der Ruine bedarf nur geringer Eingriffe, um die Standsicherheit und die Dichtigkeit wieder herzustellen.

IV.
Statt Ideen für einen Neubau braucht das Projekt ­daher ein Werkzeug, um diesen vorhandenen Raum der geplanten Nutzung anzueignen.

V.
Neben den funktionalen Anforderungen ist dabei grundlegend, wie sich der neue Einbau gegenüber der sich über die Zeit verändernden räumlichen, wirtschaftlichen und sozialen Situation verhält.


Um die Einzigartigkeit des Orts zu erhalten und mit der neuen Nutzung noch weiter zu verstärken, wird jeder der bestehenden oder durch das Nutzungs­konzept dazukommenden Heterotopie-Typen durch eine architektonische Ope­ra­tion verkörpert, die sich im Raum des Schlossensembles ergänzen und über­lagern: Die Ruine des Schlosses mit ihren raumzeitlichen Brüchen durch die subtile Modifikation des Bestehenden, das Theater als Projektionsort der ­Phantasie durch einen sich im Schloss ausbreitenden Bühnenapparat und das Fest als temporären Gegenort zum Alltag durch ein temporäres Festkleid.


Pikto Tor Pikto Box Pikto Vorhang
Schemadarstellungen der Konzeptelemente Begrenzung, Kapsel, Vorhang

Detail Tor Detail Box Detail Vorhang
Detailschnitte der Konzeptelemente Begrenzung, Kapsel, Vorhang

Haupt­bestand­teil des Ein­griffs ist eine architek­tonische Maschine, die sich in den Räumen des Schlosses ausbreitet. Gleich­zeitig ist sie Bühne für alle Ver­­an­stal­tungen und Leitungs- und Wege­führung. Ebenso wie der Bühnen­apparat, der in traditio­nellen Theater­häusern den „Deus ex Machina“ auf die Bühne bringt, soll auch der architek­tonische Einbau im Schloss Coswig die benötigte Funk­tio­­nalität „wie von Zauber­hand“ bereit­­stellen. Dabei verhält sich das Werk­zeug wie eine Berg­bau­­maschine, die sich auf der Suche nach wert­vollen Ein­schlüssen im Gestein durch Höhlen und unter­irdische Gänge bewegt, Stollen sichert, Schutz­räume baut und die gefun­denen wert­vollen Schätze zugänglich macht. Der zur Ver­fügung stehende Raum wird auf Taug­lich­keit für die Ver­wendung über­prüft und eventuell nach den Anfor­derungen verändert. Wie die Bergwerk­maschinen kann der architek­tonische Apparat im Schloss Coswig selbst ­keine statischen Aufgaben über­nehmen - er kann aber den vorge­­fundenen Raum so ver­ändern, dass die Trag­fähig­keit ­wieder herge­stellt und neue Verbin­dungen geschaffen werden.
Der Apparat breitet sich als Boden aus Guss­asphalt im Schloss aus, ohne die ruinösen Wände und Decken des Schlosses zu berühren, die für dessen Atmo­sphäre so prägend sind. Begrenzt wird der Boden durch eine Kante aus brüniertem Messing, das auch die rest­lichen Abschlüsse an Treppen und Türen bildet.
Da die Nutzung des Schlosses haupt­sächlich auf kurz­zeitige ­Belegung kleiner Bereiche ausgerichtet ist, werden nur ­länger genutzte Räume durchgehend geheizt und gedämmt. In manchen Bereichen wie dem Gäste-Apartment, Büroraum oder den Sanitär­bereichen faltet sich der Boden des Bühnen­apparats deshalb zusammen und gibt diesen Räumen den thermischen Schutz und die nötige Privat­sphäre eines Schutzraums in der Ruine.
Gebaut ist diese Kapsel aus einer Holz­ständer­wand mit Zwischen­dämmung, die ­beider­seits diffusions­offen mit Holzweich­faser­­platten beplankt ist. Raum­sichtig wird ein schwarz gefärbter Lehm­putz aufgebracht und mit einer Lehm­kasein­spachtelung wider­stands­fähig gemacht.
Die Ausbreitung des Bühnen­apparats auf dem Boden des Bestands­­baus formt eine Bühne für die tatsäch­liche Theater­nutzung. Dieser von der Maschine geformte Bühnen­raum wird von einer zweiten tempo­rären Schicht über­lagert. Wiederum in Kontrast zum Apparat schaffen weiße Vor­hänge durch ihre Umhüllung intimere Räume auf dem neuen Boden und markieren so die Ver­an­stal­tungs­bereiche. Sie verbessern durch Schall­­absorption die akustischen Eigen­schaften und ver­mindern den Luft­austausch mit kälterer Umgebungs­luft im Winter. Die kurz­fristig genutzten Ver­an­stal­tungs­bereiche können so ähnlich einer Kirche schnell und effektiv beheizt werden, ohne dass eine voll­flächige Dämmung des Gebäudes notwendig ist.

Grundriss EG
Grundriss Erdgeschoss

Grundriss OG1
Grundriss erstes Obergeschoss

Grundriss OG2
Grundriss zweites Obergeschoss

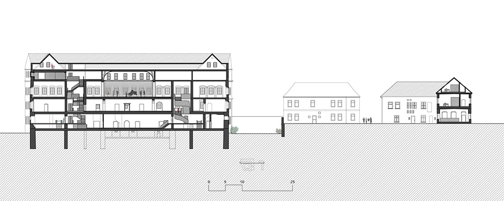
Längsschnitt
Schnitt durch den Nordflügel des Schlosses und den Wirtschaftshof

Der neue Festsaal im Schloss
Blick in den Großen Festsaal im zweiten Obergeschoss (Modellfoto © Michael Protschky 2014)